Projekthus

Udstillingshus i Vig

Adresse

Granvej 1, Ellinge Lyng,
4560 Vig

Tlf. 58 56 04 00
E-mail: salg@ebk.dk

Salgsteamet

Åbningstider

kl. 12-14:
17. maj
25. maj
7. juni
21. juni

Huset er til salg. Book fremvisning eller rådgivning på andre tidspunkter her

Book Gratis Grundtjek i Odsherred

Skal vi kigge forbi din fritidsgrund før eller efter vores åbningstider? Vi er også klar, hvis en anden dag passer dig bedre.

Vi mødes på din grund og får en snak om, hvilken type fritidshus der passer til grunden og til dine drømme.

I Vig kan du komme helt tæt på:

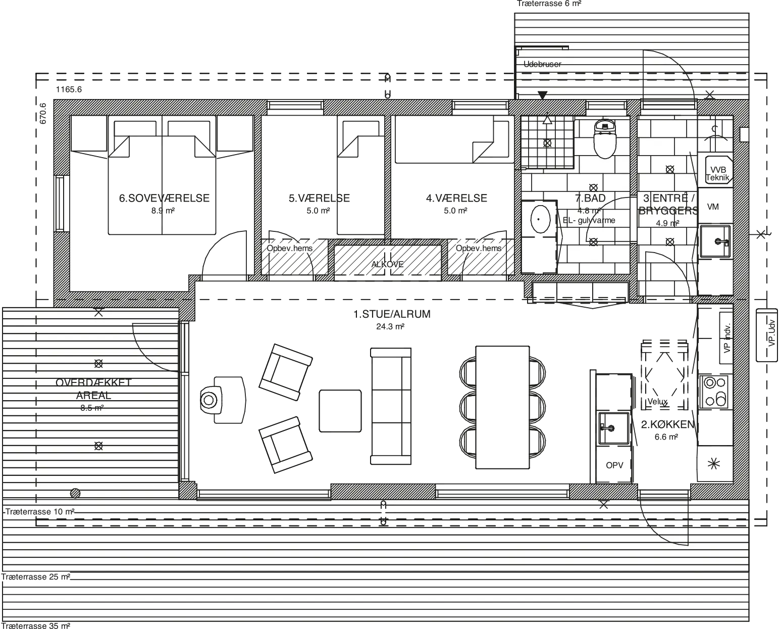
Kompakt 80B #Nostalgi | Det budgetvenlige sommerhus

Et Kompakt sommerhus med et nostalgisk udtryk. Med veldisponerede rum og uden unødig spildplads. Med loft til kip, store vinduespartier og hyggelig alkove.

  • Bebygget areal: 71 m²
  • Overdækket areal: 9 m²
  • Antal værelser: 3
  • Huset er til salg

Plantegning på Kompakt 80B

Hvad koster dit drømmehus?

Få svaret på 20 sekunder

Hvad koster dit drømmehus?